Zum Hauptinhalt springen Zur Suche springen Zur Hauptnavigation springen

Freistehende Briefkastenanlage mit Kamera & Klingel AV

Material 100% UV- & witterungsbeständig


Hergestellt in deutscher Manufaktur

Ersatzteile günstig lieferbar

Großes Sortiment

Produktinformationen "Freistehende Briefkastenanlage mit Kamera & Klingel AV"

 1-12 Briefkästen

Kompakte freistehende Briefkastenanlage mit Klingel & Kamera.
Die hochwertige Kamera bietet den Bewohnern nicht nur Komfort, sondern auch Sicherheit. Über das digitale Farbdisplay der Türstation erkennen sie sofort, wer vor ihrem Haus steht.

Ausgestattet mit einem Sprechsieb und einer Klingel vereint die Anlage alles, was für einen Hauseingang notwendig ist.

Die Briefkastenanlage ist mit einer integrierten, nach vorne überstehenden Regenkante ausgestattet.
Bester Schutz für jede Witterung!

Damit die Post beim Öffnen nicht heraus fällt, ist jeder Briefkasten mit einem Posthaltebügel ausgestattet.
Die Einwurfklappe ist mit einer Gummilippe versehen, damit sie leise zufallen kann.

Der Briefkasten ist nach DIN EN13724 genormt, d.h. er kann problemlos Briefe bis Größe DIN A4 aufnehmen, ohne dass diese geknickt werden müssen.

Lieferung erfolgt komplett montiert per Spedition.


 

Ausstattung:

  • gelochtes Sprechsieb
  • Video-Sprechanalgen-Set von Comelit (bestehend aus Türstation, Videolautsprecher, Netzteil, ab 3 Teilnehmer eine Tasterschnittstelle)
  • ein Kunstsoff-Klingeltaster je Briefkasten mit LED-Beleuchtung
  • je Briefkasten 1Schloss mit Staubschutz und je 2 Schlüssel
  • je Briefkasten ein Namensschild, das leicht getauscht werden kann
  • 1 Posthaltebügel in jedem Briefkasten, der verhindert, dass die Post beim Öffnen herausfällt
  • enganliegende, kompakte Verkleidung
  • dreiteilig mit integrierter nach vorn überstehender Regenkante
  • Dachverkleidung über Seitenverkleidung gekantet
  • Rechteckständer seitlich angebracht
  • made in Germany!

 

Material:
Briefkasten, Kastentür: Stahl verzinkt, pulverlackiert
Einwurfklappe, Rückwand, Ständer, Verkleidung: Aluminium pulverlackiert

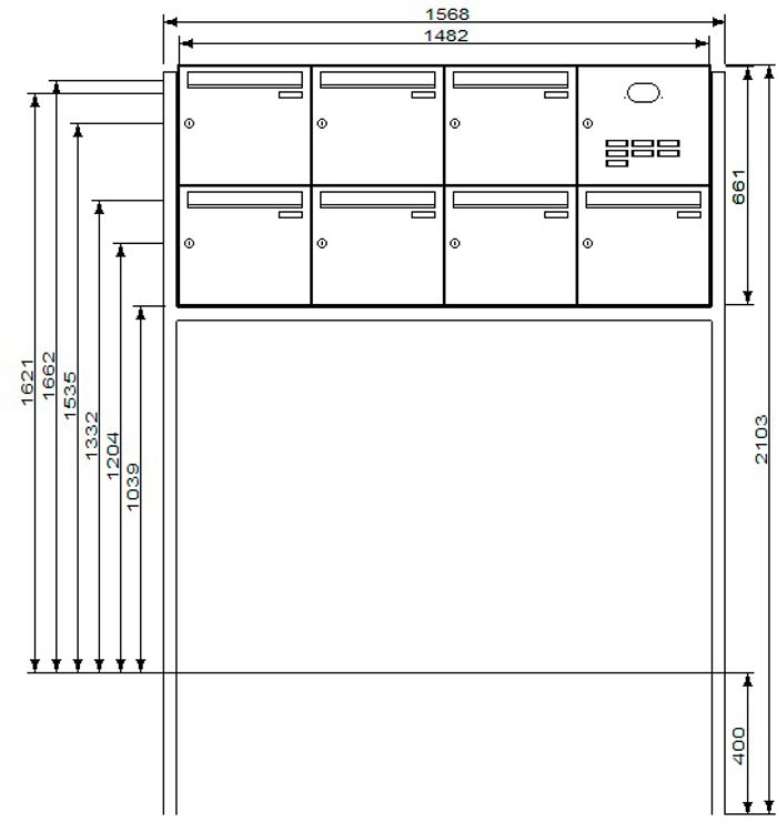
Maße:
Briefkasten einzeln:  370x330x100 mm (BxHxT); DIN A4 Briefumschlag passt komplett in den Kasten
Fußplatten (Variante Aufschrauben)
140x5x160mm (BxHxT)


Farben:
RAL9007 graualuminium
RAL7016 anthrazitgrau
RAL9016 verkehrsweiß
DB703 Eisenglimmer grau
weitere Farben auf Anfrage möglich sowie andere Anordnung der Briefkästen

 


Das Video-Sprechanlagen-Set von comelit bietet folgende Vorteile:

  • ideal für Umbau und Renovierung, da vorhandene Leitungen weiter genutzt werden können
  • einfache Installation, dadurch geringere Kosten für Handwerker
  • einfache Bedienung
  • nähere Informationen zu comelit finden Sie unter https://www.comelitgroup.com/de-de/

 

  


 

 

Sie möchten eine andere Videoanlage einbauen?

Kein Problem. Teilen Sie uns den genauen Videotyp mit. Sie erhalten dann ein unverbindliches Angebot von uns.

 


 

 

 


Korrosionsschutzmaßnahmen (Angaben vom Hersteller):
- Kästen aus sendzimierverzinktem Stahl (verfombar ohne Abspringen der Beschichtung, zusätzlich hoher Aluminiumanteil d.h. hoher Korrosionsschutz)
- Teile aus sendzimirverzinktem Stahl werden vor dem Pulverbeschichten Eisen- phosphatiert, Aluminiumteile chromfrei chromatiert
- Zusätzlich erhalten alle Aluminium- und Stahlteile, Ausnahme eloxierte Oberflächen, eine lösungsmittelfreie Pulverlackierung (z.T. auch Kunststoffbeschichtung genannt) mit Polyesterpulver in Fassadenqualität, dies garantiert UV- und Wetterbeständigkeit
- Stärke der Pulverbeschichtung mindestens ca. 70 µm

Produktservice:
- Ersatzteile sind günsitg vorrätig, Türen und Klappen sowie alle Funktionselemente können einfach selbst ausgetauscht werden
- Türen sind mit Hammerschrauben befestigt- einfache Ausrichtung nach Montage bzw. Austuasch im Falle einer Beschädigung durch Laien möglich

 

Anzahl Briefkästen: 7 Briefkästen und mehr
Klingelanlage: mit Klingel + Kamera
Material: lackiert

0 von 0 Bewertungen

Durchschnittliche Bewertung von 0 von 5 Sternen

Bewerten Sie dieses Produkt!

Teilen Sie Ihre Erfahrungen mit anderen Kunden.


Nicht der passende Artikel? 

Wir helfen Ihnen weiter!

Mailen Sie uns:

info@schmitt-smartes-wohnen.de

Rufen Sie uns an

09522 - 39 50 209

Produktgalerie überspringen

Similar Items

viele Farben
2-20 Kästen
Freistehende Briefkastenanlage mit Klingel AS
Freistehende Briefkastenanlage mit Klingel AS

 1-20 Briefkästen, viele Farben z.B. Anthrazit, Grau, Weiß Hochwertige freistehende Briefkastenanlage mit Klingel in schlichten, modernen Design.Ob zum Einbetonieren oder zum Aufschrauben auf einen festen Untergrund, Sie bekommen beides.Ausgestattet mit einem Sprechsieb und einer Klingel vereint die Anlage alles, was für einen Hauseingang notwendig ist.Die Briefkastenanlage ist mit einer integrierten, nach vorne überstehenden Regenkante ausgestattet.Bester Schutz für jede Witterung!Damit die Post beim Öffnen nicht heraus fällt, ist jeder Briefkasten mit einem Posthaltebügel ausgestattet.Die Einwurfklappe ist mit einer Gummilippe versehen, damit sie leise zufallen kann.Der Briefkasten ist nach DIN EN13724 genormt, d.h. er kann problemlos Briefe bis Größe DIN A4 aufnehmen, ohne dass diese geknickt werden müssen. Lieferung erfolgt komplett montiert per Spedition.   Ausstattung: enganliegende Verkleidung dreiteilig mit integrierter nach vorn überstehender Regenkante Dachverkleidung über Seitenverkleidung gekantet Rechteckständer seitlich angebracht gelochtes Sprechsieb mit Universaladapter zur Befestigung handelsüblicher Sprechanlagen ein Kunststoff Klingeltaster je Briefkasten inkl. LED-Beleuchtung Schloss mit Staubschutz und je 2 Schlüssel Posthaltebügel Made in Germany!   Material:Briefkasten, Kastentür: Stahl verzinkt, pulverlackiertEinwurfklappe, Rückwand, Ständer, Verkleidung: Aluminium pulverlackiert   Maße:Briefkasten einzeln:  370x330x100 mm (BxHxT); DIN A4 Briefumschlag passt komplett in den KastenFußplatten (Variante Aufschrauben)140x5x160mm (BxHxT) Farben:RAL9007 GraualuminiumRAL7016 AnthrazitgrauRAL9016 Verkehrsweiß DB703 Eisenglimmer grauRAL nach Wahl   Sie benötigen auch eine passende Sprechanlage und Türstationen dazu? Kein Problem. Bestellen Sie einfach das passende Set von unserem Partner comelit mit dazu. Das Set finden Sie unter der Artikel-Nr. COM9999 oder klicken Sie einfach HIER.     Korrosionsschutzmaßnahmen (Angaben vom Hersteller):- Kästen aus sendzimierverzinktem Stahl (verfombar ohne Abspringen der Beschichtung, zusätzlich hoher Aluminiumanteil d.h. hoher Korrosionsschutz)- Teile aus sendzimirverzinktem Stahl werden vor dem Pulverbeschichten Eisen- phosphatiert, Aluminiumteile chromfrei chromatiert- Zusätzlich erhalten alle Aluminium- und Stahlteile, Ausnahme eloxierte Oberflächen, eine lösungsmittelfreie Pulverlackierung (z.T. auch Kunststoffbeschichtung genannt) mit Polyesterpulver in Fassadenqualität, dies garantiert UV- und Wetterbeständigkeit- Stärke der Pulverbeschichtung mindestens ca. 70 µmProduktservice:- Ersatzteile sind günsitg vorrätig, Türen und Klappen sowie alle Funktionselemente können einfach selbst ausgetauscht werden- Türen sind mit Hammerschrauben befestigt- einfache Ausrichtung nach Montage bzw. Austuasch im Falle einer Beschädigung durch Laien möglich  

Regulärer Preis: Ab 867,00 €
viele Farben
2-20 Kästen
6er briefkastenanlage freistehend mit klingel grau fs40hk
Knobloch Briefkastenanlage freistehend mit Klingel FS40HK

Die freistehende Briefkastenanlage FS40HK mit Klingel ist ideal für den Einsatz im Außenbereich.Sie erhalten die Anlage mit 2-20 Kästen in vielen Farben, z.B. Anthrazit, Grau, Weiß, DB703, ...Die perfekte Verkleidung sorgt für einen optimalen Schutz vor jeglichen Wind- und Wettereinflüssen.Die Briefkästen sind nach den aktuellen Vorschriften gemäß EN 13724 genormt.Lieferung erfolgt komplett montiert per Spedition. Made in Germany!   Material:Briefkasten, Kastentür: Stahl verzinktEinwurfklappe, Rückwand, Ständer, Verkleidung: Aluminium lackiert Maße:Kasten einzeln: 300x110x380 mm (BxHxT); EN 13724 konform Fußplatten (Variante Aufschrauben)140x5x160mm (BxHxT) Farben:RAL 7016 AnthrazitgrauRAL 9007 GraualuminiumRAL 9016 Verkehrsweiß DB703 Eisenglimmer grau RAL nach Wahl Ausstattung: Rechteckständer seitlich angebracht enganliegende Verkleidung integrierte, nach vorn überstehende Regenkante 1 Namensschild je Briefkasten 1 Kunstsotff Klingeltaster je Briefkasten inkl. LED-Beleuchtung 1 gelochtes Sprechsieb, inklusive Universal-Adapter als Montagehilfe für alle handelsüblichen Wechselsprechanlagen (z.B. Siedle, Busch Jäger, Comelit, ...) hochwertiges Schloss mit Staubschutz und 2 Schlüssel je Briefkasten   Sie benötigen auch eine passende Sprechanlage und Türstationen dazu? Kein Problem. Bestellen Sie einfach das passende Set von unserem Partner comelit mit dazu. Das Set finden Sie unter der Artikel-Nr. COM9999 oder klicken Sie einfach HIER.    Produktservice:- Ersatzteile sind günstig vorrätig, Türen und Klappen sowie alle Funktionselemente können einfach selbst ausgetauscht werden- Türen sind mit Hammerschrauben befestigt- einfache Ausrichtung nach Montage bzw. Austausch im Falle einer Beschädigung durch Laien möglich Korrosionsschutzmaßnahmen (Angaben vom Hersteller):- Kästen aus sendzimierverzinktem Stahl (verformbar ohne Abspringen der Beschichtung, zusätzlich hoher Aluminiumanteil d.h. hoher Korrosionsschutz)- Teile aus sendzimirverzinktem Stahl werden vor dem Pulverbeschichten Eisen- phosphatiert, Aluminiumteile chromfrei chromatiert- Zusätzlich erhalten alle Aluminium- und Stahlteile, Ausnahme eloxierte Oberflächen, eine lösungsmittelfreie Pulverlackierung (z.T. auch Kunststoffbeschichtung genannt) mit Polyesterpulver in Fassadenqualität, dies garantiert UV- und Wetterbeständigkeit- Stärke der Pulverbeschichtung mindestens ca. 70 µm    

Regulärer Preis: Ab 929,00 €
viele Farben
1-12 Kästen
6er freistehende briefkastenanlage mit kamera grau fs40hkk
Briefkastenanlage freistehend mit Kamera FS40HKK

2-12 Kästen; 4 Farben Die freistehende Briefkastenanlage FS40HKK bietet mit Ihrer Kamera einen großen Komfort und Sicherheit für die Mieter. Sie ist mit einem modernen + hochwertigen Kamerasystem von Comelit ausgestattet.Die perfekte Verkleidung sorgt für einen optimalen Schutz vor jeglichen Wind- und Wettereinflüssen und macht sie damit ideal für den Einsatz im Außenbereich.Die Briefkästen sind nach den aktuellen Vorschriften gemäß EN 13724 genormt und vom TÜV Süd geprüft.Lieferung erfolgt komplett montiert per Spedition. Made in Germany!     Ausstattung: gelochtes Sprechsieb Video-Sprechanalgen-Set von Comelit (1 Videolautsprecher, 2-Draht-Netzteil, ab 3 Teilnehmer eine Tasterschnittstelle, je Briefkasten 1 Türstation mit Farbmonitor, auf Anfrage auch mit Wifi-Funktion) ein Klingeltaster inkl. LED-Beleuchtung je Briefkasten je Kasten ein Namensschild unter der Einwurfklappe & 2 Schlüssel kompakte Verkleidung mit nach vorne überstehender Regenkante Öffnung erfolgt von links nach rechts made in Germany     Material:Briefkasten, Kastentür: Stahl verzinkt, pulverlackiertEinwurfklappe, Rückwand, Ständer, Verkleidung: Aluminium pulverlackiert   Maße:Kasten einzeln: 300x110x380 mm (BxHxT); EN 13724 konform; DIN A4 Briefumschläge passen komplett in den Kasten Fußplatten (Variante Aufschrauben)140x5x160mm (BxHxT)   Farben:RAL 7016 anthrazitgrauRAL 9007 graualuminiumRAL 9016 verkehrsweiß DB703 Eisenglimmer grau weitere Farben auf Nachfrage möglich!      Inhalt des Kamera-Sets: 1 Videolautsprecher für den Briefkasten 2-Draht-Netzteil 1 Türstation 6721W mit Farbmonitor:                            - 4,3 Zoll-/16:9-Farbdisplay                           - 480x272 Pixel und einstellbare Helligkeit                           - Einstellung der Sträke des Audiosignals und des Klingeltons                           - Tasten für Türöffner    Das Set bietet folgende Vorteile: ideal für Umbau und Renovierung, da vorhandene Leitungen weiter genutzt werden können (2-Draht-Technik) einfache Installation, dadurch geringere Kosten für Handwerker einfache Bedienung nähere Informationen zu comelit finden Sie unter https://www.comelitgroup.com/de-de/    Sollten Sie zusätzliche Türsationen benötigen, können Sie diese unter der Artikel-Nr. COM9998 Comelit Türstation für Video-Sprechanlagen mitbestellen: hier klicken.      Produktservice:- Ersatzteile sind günsitg nachbestellbar, Türen und Klappen sowie alle Funktionselemente können einfach selbst ausgetauscht werden- Türen sind mit Hammerschrauben befestig, d.h. einfache Ausrichtung nach Montage bzw. Austuasch im Falle einer Beschädigung durch Laien möglich   Korrosionsschutzmaßnahmen (Angaben vom Hersteller):- Kästen aus sendzimierverzinktem Stahl (verfombar ohne Abspringen der Beschichtung, zusätzlich hoher Aluminiumanteil d.h. hoher Korrosionsschutz)- Teile aus sendzimirverzinktem Stahl werden vor dem Pulverbeschichten Eisen- phosphatiert, Aluminiumteile chromfrei chromatiert- Zusätzlich erhalten alle Aluminium- und Stahlteile, Ausnahme eloxierte Oberflächen, eine lösungsmittelfreie Pulverlackierung (z.T. auch Kunststoffbeschichtung genannt) mit Polyesterpulver in Fassadenqualität, dies garantiert UV- und Wetterbeständigkeit- Stärke der Pulverbeschichtung mindestens ca. 70 µm    

Regulärer Preis: Ab 2.570,00 €

10 Jahre Erfahrung!

Großes Sortiment -
Hohe Qualität!
Kostenloser Versand (ab 50€)
Sicher einkaufen!
Fragen zum Produkt
Datenschutz
Die mit einem Stern (*) markierten Felder sind Pflichtfelder.